MARQ, Alicante | 2022
La exposición temporal internacional “El Guerrero Atlántico. ¿Símbolos de Poder?” se llevó a cabo en el Museo Arqueológico Provincial de Alicante (MARQ) en colaboración con el Museo Nacional de Arqueología de Portugal (MNA). Este proyecto innovador se centró en tres piezas excepcionales, declaradas Tesoro Nacional de Portugal, que se exhibieron por primera vez en Alicante. Entre ellas se encontraban el Guerrero Galaico de Castro Outeiro de Lezenho, una escultura de verraco en granito de Olival dos Berrões, y el destacado Torque de Vilas Boas, una pieza de gran valor histórico que se presentó por primera vez fuera de Portugal.
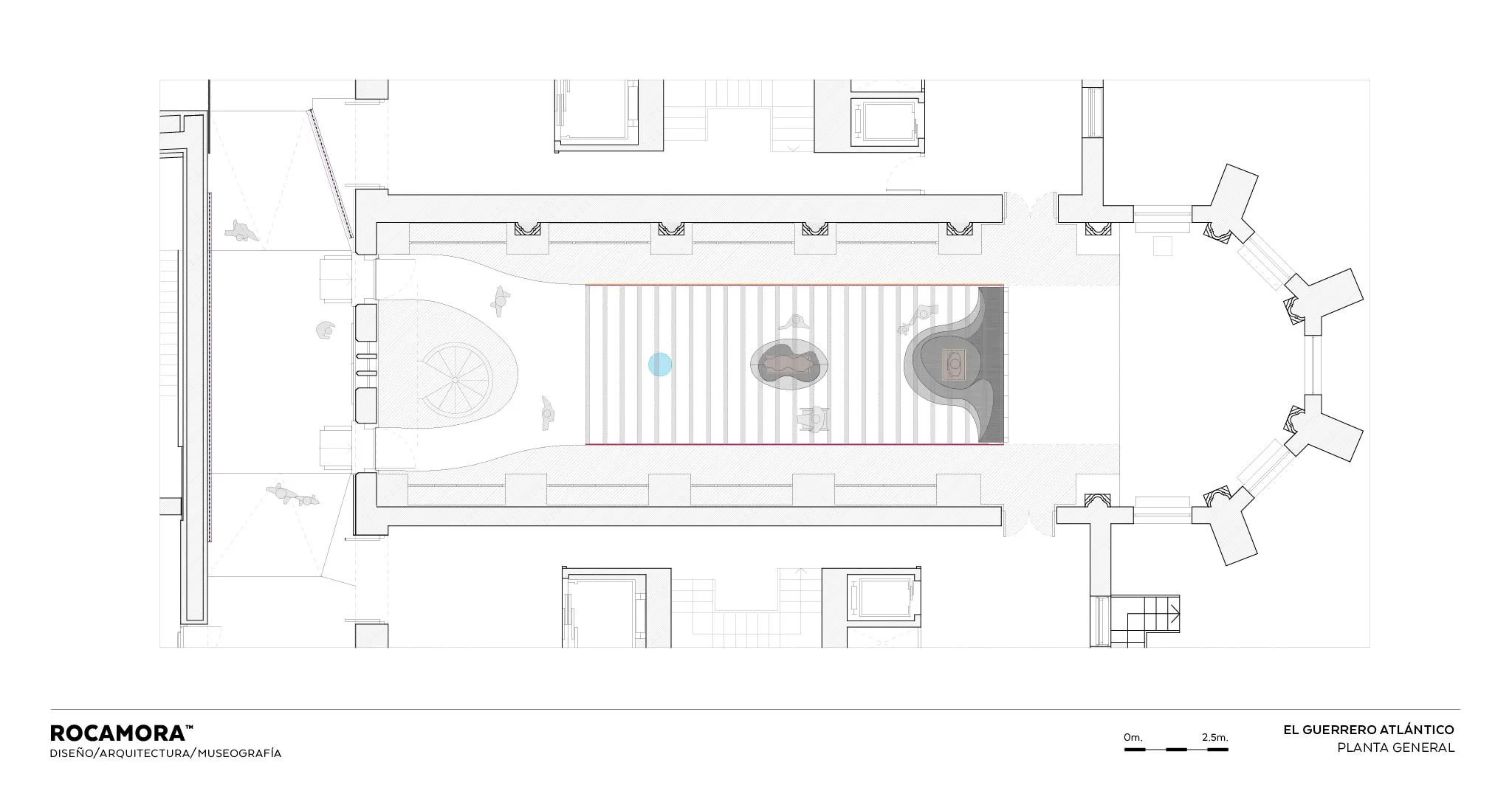
La exposición se ubicó en la Sala Noble de la Biblioteca del MARQ. El diseño museográfico se enfocó en resaltar la importancia y el contexto histórico de los artefactos mediante una disposición estratégica y el uso de tecnología avanzada. Se incorporaron proyecciones audiovisuales y herramientas interactivas que enriquecieron la experiencia del visitante, permitiendo una comprensión más profunda de las piezas y su relevancia cultural.
Se creó un entorno que equilibrara funcionalidad y estética, asegurando que cada pieza recibiera la atención adecuada a partir de plataformas con peanas o vitrinas individualizadas a modo de topografías que contextualizan estas piezas en su espacio territorial. El techo de la exposición presenta, en una disposición de láminas continuas, una imagen esquemática de la vista cenital de las arquitecturas de estos poblados, coronando la exposición y trayendo la imagen tradicional que existe en el ideario social de estos pueblos galaicos y de la cultura castreña al espacio expositivo.
La intervención arquitectónica buscó ofrecer una experiencia inmersiva, reflejando la importancia histórica de los objetos expuestos.
Cliente: MARQ
Diseño Museográfico: Rocamora Diseño y Arquitectura
Fotografías: Rocamora Diseño y Arquitectura
Para ofrecer las mejores experiencias, utilizamos tecnologías como las cookies para almacenar y/o acceder a la información del dispositivo. El consentimiento de estas tecnologías nos permitirá procesar datos como el comportamiento de navegación o las identificaciones únicas en este sitio. No consentir o retirar el consentimiento, puede afectar negativamente a ciertas características y funciones.