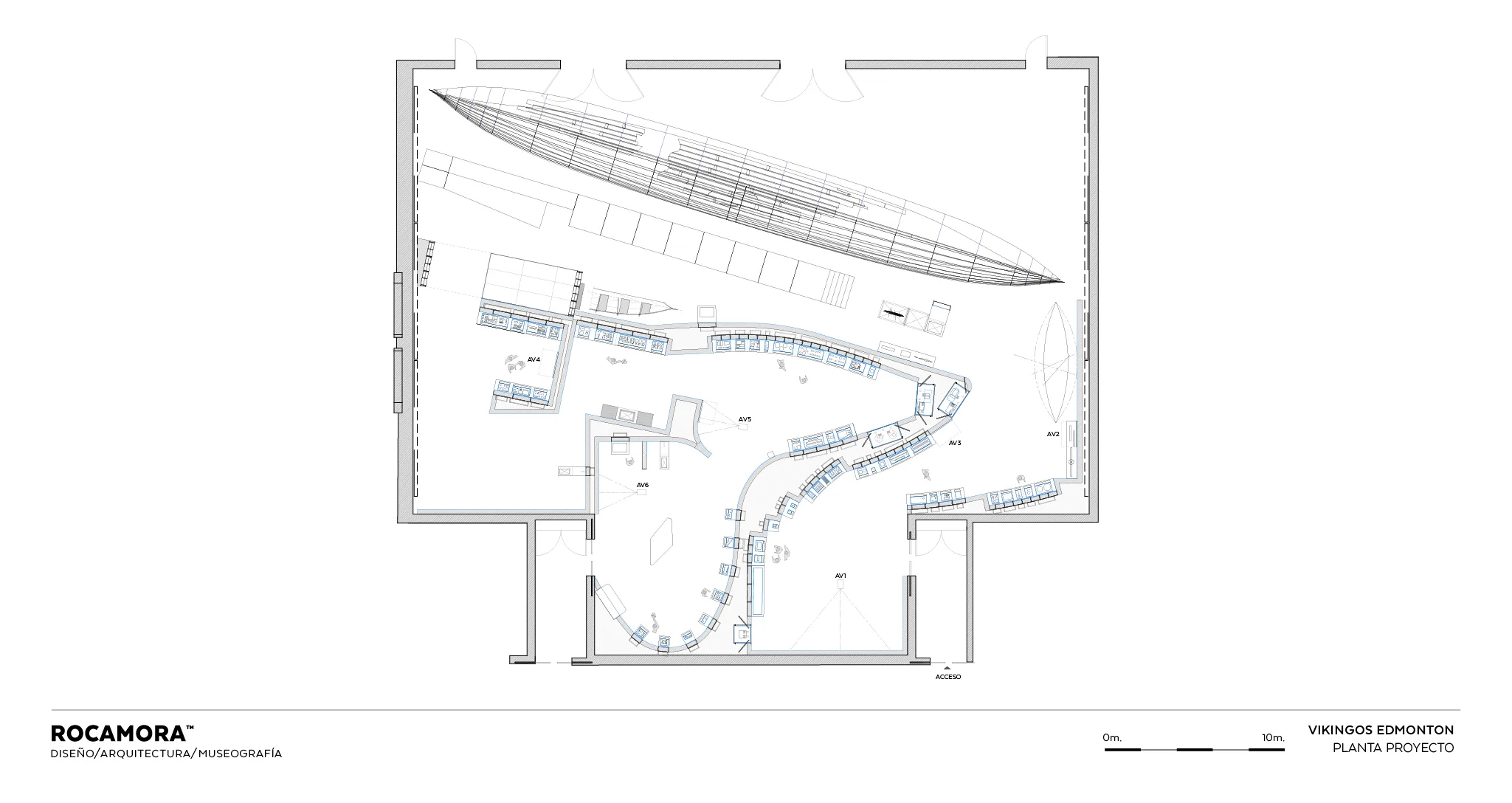
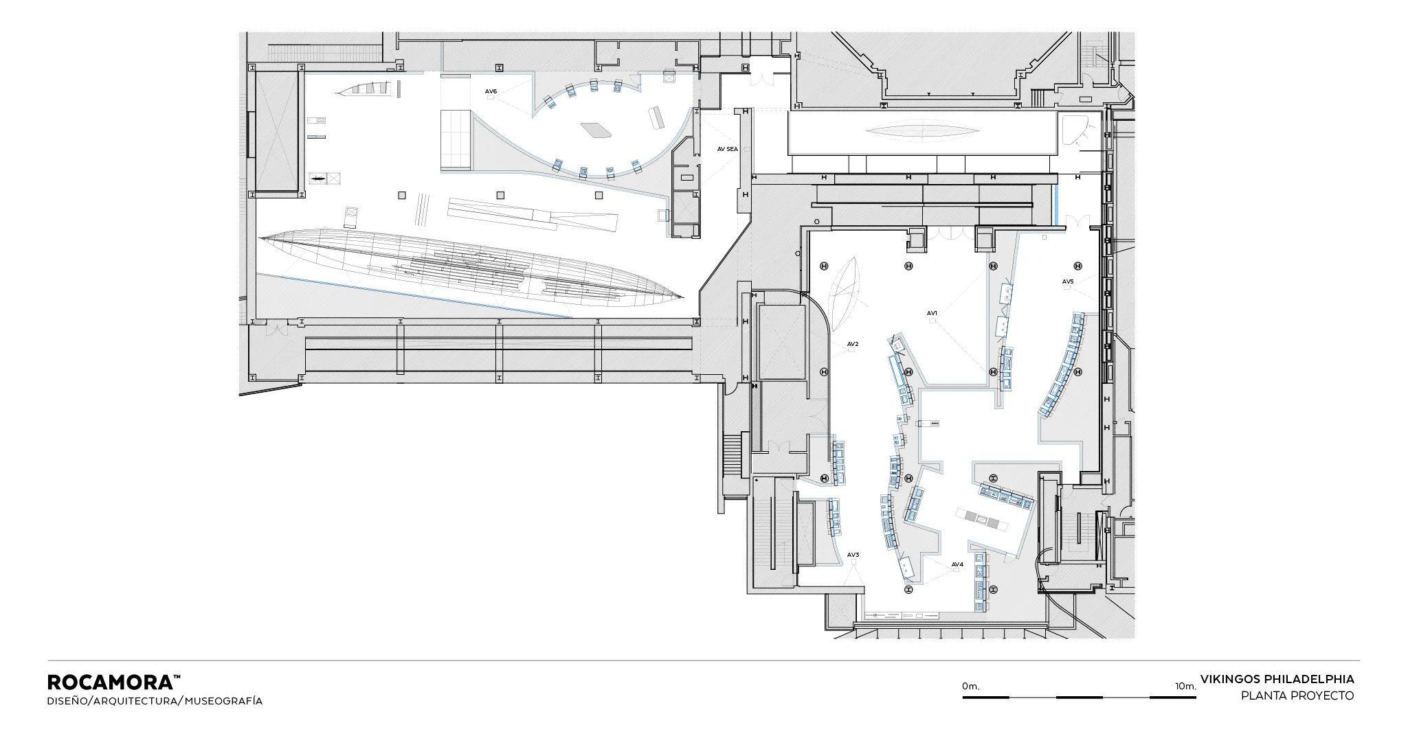
MARQ, Alicante, España | Museu de Marinha, Lisboa, Portugal | Espacio Cultural Cajacanarias, Tenerife, España | The Franklin Institute, Philadelphia, EE.UU. | Royal Alberta Museum, Edmonton, Canadá | Fernbank Museum, Atlanta, Georgia, EE.UU.
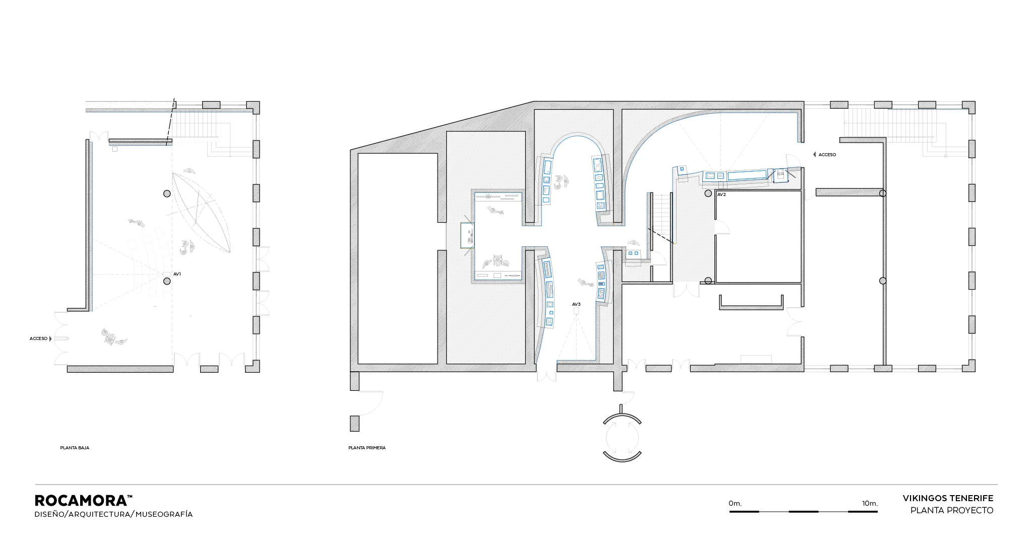
La exposición temporal itinerante «Vikingos, Guerreros del Norte, Gigantes del Mar» en el Museo Arqueológico de Alicante MARQ, ofreció una experiencia inmersiva y única en el mundo vikingo a partir de una colección procedentes del Museo Nacional de Dinamarca Nationalmuseet. Presentada con más de 200 piezas originales, la muestra exploró la cultura vikinga en sus diversas facetas: naval, comercial, social y religiosa.
El diseño expositivo se destacó por su enfoque en la recreación arquitectónica vikinga. En la primera sala, las paredes imitaron las curvas fluidas y las técnicas constructivas de los drakkars vikingos, con lamas de madera escalonada que evocaban la arquitectura naval de la época. El suelo, impreso con las líneas básicas de dos barcos vikingos excavados en Roskilde (Dinamarca) permitió a los visitantes situarse sobre un gráfico a escala real, como otro nivel de comunicación que complementaba la exhibición de piezas relacionadas.
La segunda sala recreó las arquitecturas de casas pequeñas y el palacio de Trelleborg, contextualizando las piezas expuestas mediante la adaptación de las paredes a los dibujos técnicos de estas estructuras vikingas. Esta disposición ayudó a los visitantes a comprender mejor la vida civil y cotidiana de los vikingos. La moqueta, de nuevo, ofrecía otro nivel comunicativo con la planta de estas arquitecturas para comprensión del visitante.
La tercera sala se centró en la gran piedra de Jelling, con una escenografía inspirada en los enterramientos ovales en forma de barco. Este espacio proporcionó un marco adecuado para las piezas relacionadas con las creencias y rituales funerarios vikingos, cerrando la exposición con un enfoque en la espiritualidad de esta cultura.
El diseño también incorporó accesibilidad, con vitrinas exentas montadas en mesas en ménsula, adaptadas para ser accesibles tanto para niños como para personas en silla de ruedas. Las paredes, tapizadas en textil impreso y retroiluminadas, guiaron a los visitantes de manera natural a través de las tres salas. El suelo impreso, diseñado como una moqueta escenográfica, complementó la inmersión en la cultura vikinga, actuando como una herramienta adicional de comunicación científica.
La exposición «Vikingos, Guerreros del Norte, Gigantes del Mar» combinó una narrativa histórica detallada con un diseño expositivo innovador, ofreciendo una experiencia educativa y visualmente impactante sobre la era vikinga en el Museo Arqueológico de Alicante.
Cliente: MuseumsPartner
Comisaria: Anne Christine Larsen
Dirección del proyecto: Petra Rotthoff
Ejecución: Antra. Gestión Integral de la Construcción, S.L.
Fotografías: CabreraPhoto
THE FRANKLIN INSTITUTE, Victoria, Canada, CISION PR Newswire, Philly VOICE, UWISHUNU Philadelphia, Plataforma Arquitectura, National Geographic, Diario Información, Alicantepress, 20 minutos, El Mundo, Agencia EFE, Página 66, Diario Información, La Ventana del Arte, Ayuntamiento de Tenerife, Bes Magazine, Caja Canarias, The Valkyrie’s Vigil, Museu de Marinha, Canela & Hortelã, Diário de Notícias, Cofina Media, Público
Para ofrecer las mejores experiencias, utilizamos tecnologías como las cookies para almacenar y/o acceder a la información del dispositivo. El consentimiento de estas tecnologías nos permitirá procesar datos como el comportamiento de navegación o las identificaciones únicas en este sitio. No consentir o retirar el consentimiento, puede afectar negativamente a ciertas características y funciones.