Palacio El Portalet, Alicante | 2016 – 2017
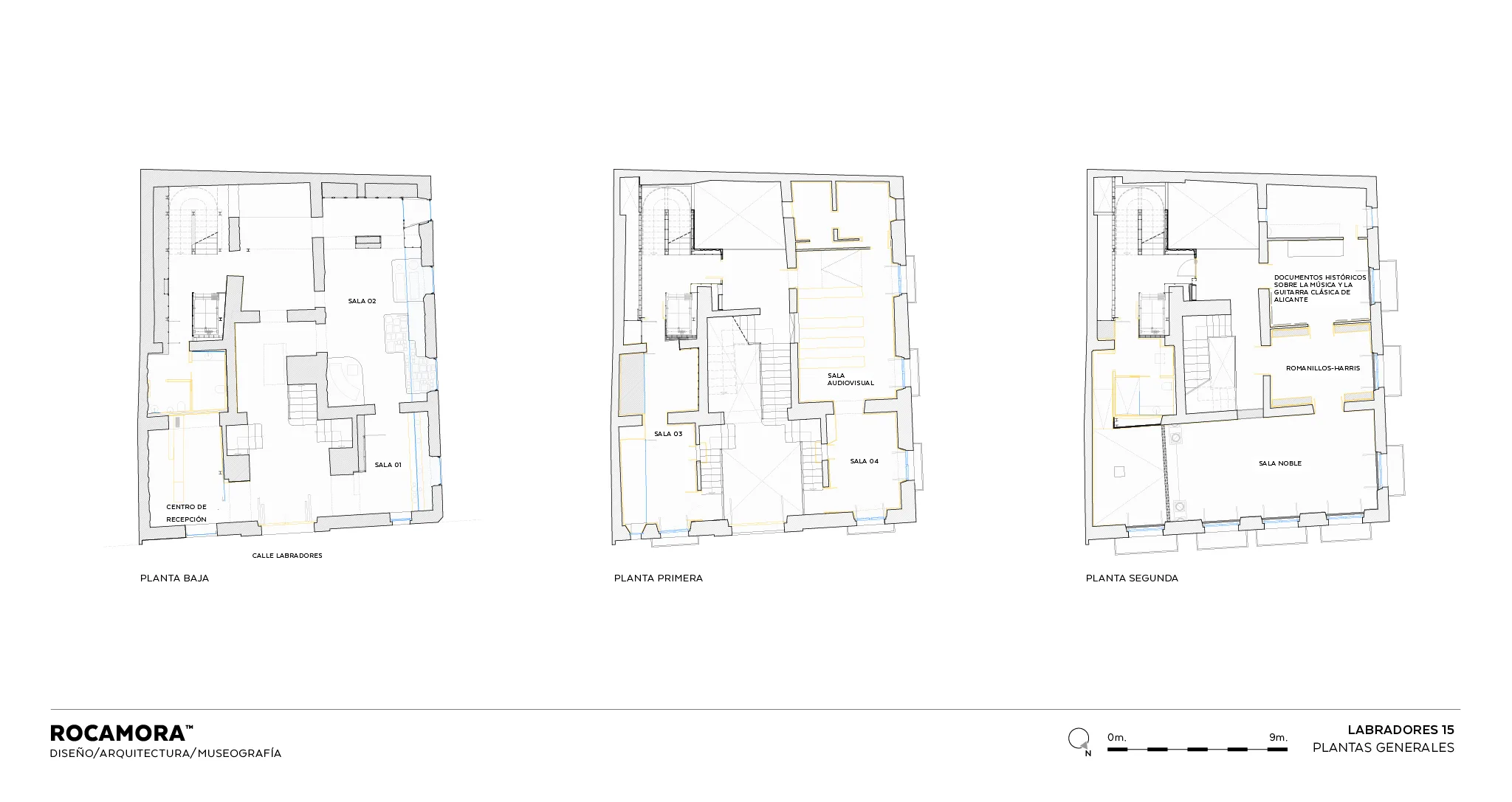
Esta exposición permanente «LAB 15. Palacio del Portalet» descubre la rica historia de Alicante del siglo XVIII. Ubicada en una casa palacio del Barrio Antiguo de Alicante, esta muestra ofrece una inmersión en la arquitectura histórica de la ciudad, destacando un proyecto de rehabilitación, restauración, accesibilidad y diseño.
La exposición revela la fascinante rehabilitación de esta casa-palacio histórica, testimonio de una época y representante de esta tipología de arquitecturas que colonizan el casco antiguo alicantino. A través de la restauración meticulosa, no sólo se ha preservado el esplendor original del edificio, sino que también se ha creado una ventana hacia la historia de la formación de Alicante y sus imponentes estructuras nobiliarias, poniendo en valor edificios emblemáticos del Barrio Antiguo como la Concatedral de San Nicolás, el Convento de las Hermanas de la Sangre, la Casa de la Asegurada (actual MACA) o el resto de casas palacio dieciochescas conservadas.
El diseño museográfico integra toda la intervención desde el máximo respeto por la arquitectura, donde láminas verticales de metacrilato impreso ofrecen la información permitiendo la visión completa de las salas, recuperando elementos originales de la casa integrados en la museografía y adecuando sus espacios para diferentes usos, como exposiciones temporales o salas audiovisuales con maquetas interactivas, módulos retroiluminados exentos y proyecciones narrativas y ambientales.
Ubicada en Labradores 15, en el corazón histórico de la ciudad, la muestra te invita a explorar la herencia inmobiliaria alicantina en un entorno que combina la elegancia de la arquitectura del siglo XVIII con un enfoque contemporáneo en la conservación.
Cliente: Ayuntamiento de Alicante / Patronato municipal de la vivienda
Diseño Museográfico: Rocamora Diseño y Arquitectura
Fotografías: Cabrera Photo
Diario Información, Cadena SER, La Vanguardia, Alicante TV, La Verdad, El Mundo, El Periodic, Comunitat Valenciana, Diario Información, Alicante Turismo, INFORMACIÓN, Alicante Guitarra Clásica, Plataforma Arquitectura, Tureforma, Generalitat Valenciana
Para ofrecer las mejores experiencias, utilizamos tecnologías como las cookies para almacenar y/o acceder a la información del dispositivo. El consentimiento de estas tecnologías nos permitirá procesar datos como el comportamiento de navegación o las identificaciones únicas en este sitio. No consentir o retirar el consentimiento, puede afectar negativamente a ciertas características y funciones.