Centro Cultural Las Clarisas, Elche | 2016
La exposición temporal “12 Marcs de Treball” en el Centro Cultural Las Clarisas ofreció una profunda reflexión sobre el pasado, presente y futuro de Elche, abordando doce aspectos clave que definen la identidad social y urbana de la ciudad. Este proyecto buscó fomentar un diálogo colectivo sobre el modelo urbano de Elche en vísperas de la revisión del Plan General de Ordenación Urbana (PGOU), como destacó el alcalde Carlos González durante la inauguración.
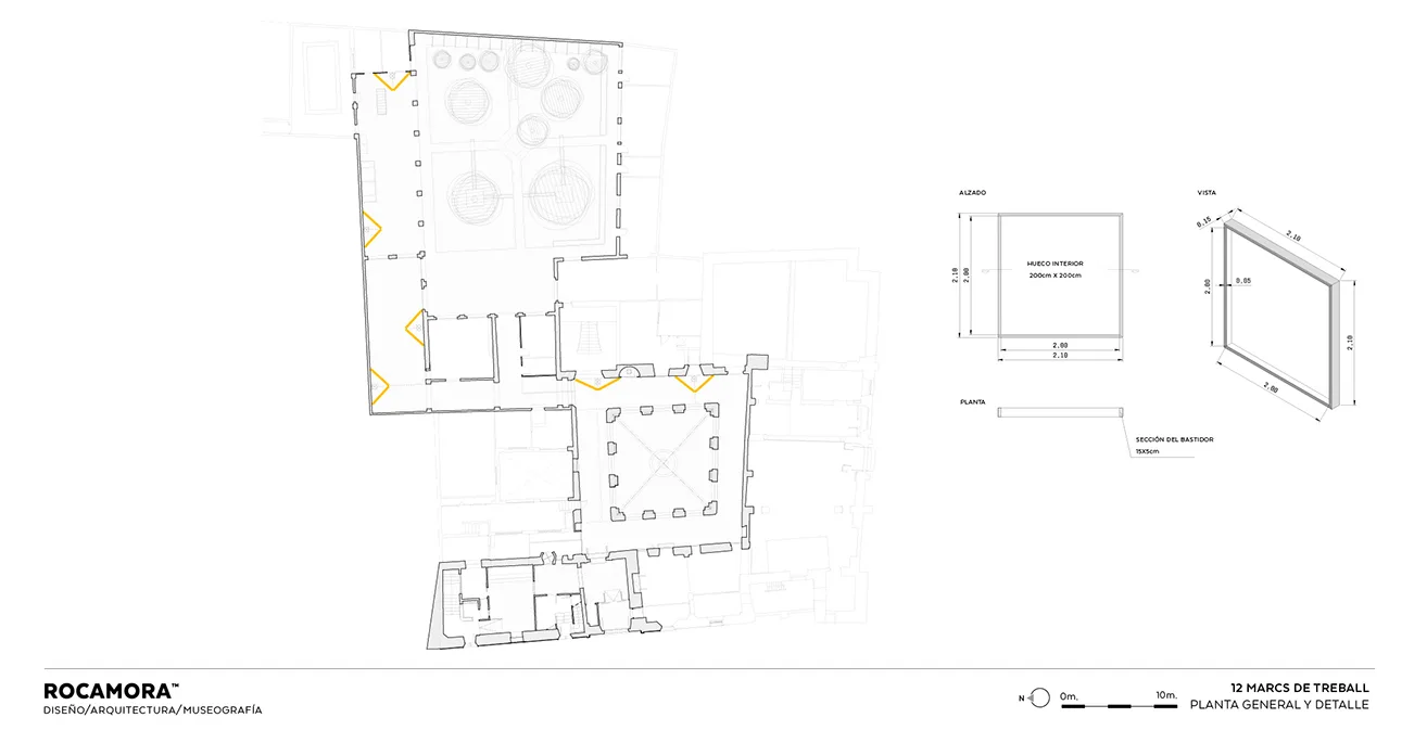
El diseño museográfico de la exposición se centró en la integración de los 12 marcos temáticos—entorno natural, agua, palmeral, barrios, pedanías, infraestructuras, conectores urbanos, patrimonio e historia, motores económicos, universidad, y la comunidad ilicitana—en un contexto que invita a la observación y reflexión. Cada marco se presentó como una lámpara, simbolizando la iluminación y el análisis de los temas tratados, y los contenidos fueron representados a través de paneles que cosen, metafóricamente, diversas situaciones urbanísticas en un tapiz visual que ilustra el tejido de la ciudad.
La exposición no solo se enfocó en el contenido, sino también en la recuperación de patrimonio a través de su localización en un antiguo convento. Se aprovechó la oportunidad para abrir al público dos espacios que anteriormente habían permanecido cerrados: el jardín y un antiguo refectorio. Este enfoque no solo proporcionó un nuevo contexto para la exposición, sino que también permitió a los visitantes experimentar espacios históricos que contribuyen al carácter del Centro Cultural Las Clarisas.
La museografía de “12 Marcs de Treball” se diseñó para proporcionar una experiencia participativa y envolvente. Los marcos temáticos y sus representaciones gráficas facilitaron una comprensión clara de los desafíos y oportunidades para el desarrollo urbano de Elche. La exposición enfatizó la importancia de la identidad local, la innovación y la sostenibilidad, basando el futuro modelo de ciudad en estos principios fundamentales. La combinación de elementos históricos, espacios recuperados y una narrativa visual cohesionada hizo de esta muestra una herramienta valiosa para la definición de nuevas estrategias urbanísticas para Elche.
Co-Autores: Elena Rocamora, Irene Linares
Fotografías: CabreraPhoto
El Periodic, Teleelx, Diario Información, Elche.com, El Periodic
Para ofrecer las mejores experiencias, utilizamos tecnologías como las cookies para almacenar y/o acceder a la información del dispositivo. El consentimiento de estas tecnologías nos permitirá procesar datos como el comportamiento de navegación o las identificaciones únicas en este sitio. No consentir o retirar el consentimiento, puede afectar negativamente a ciertas características y funciones.