Santa Pola | 2025
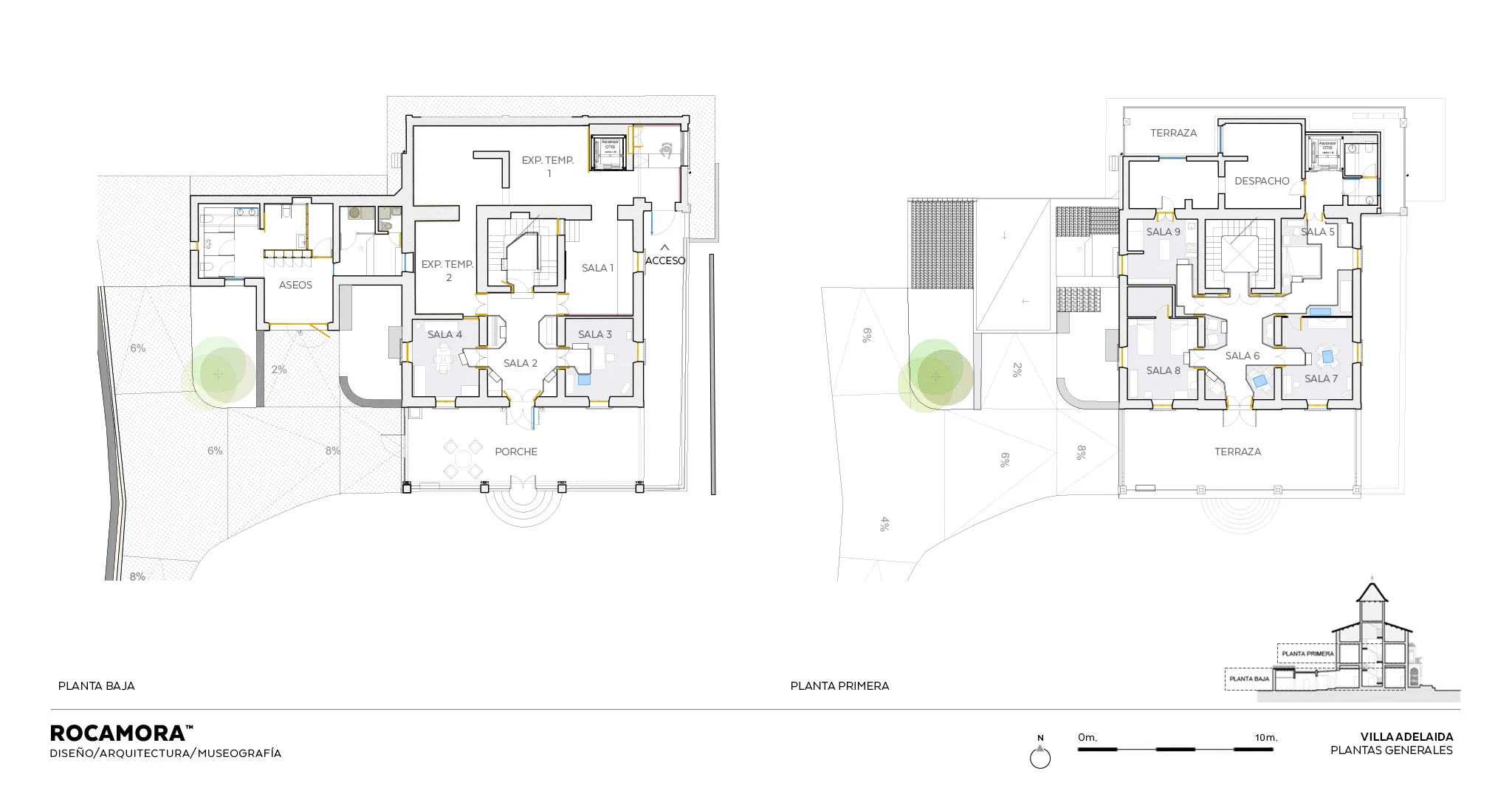
Villa Adelaida es un escenario de vidas extraordinarias y un icono de la arquitectura indiana modernista en Santa Pola. Conocida popularmente como el “castillo” de Maribel López Pérez-Ojeda, una santapolera que dejó una profunda huella, la finca ha sido restaurada para iniciar su nueva vida como casa museo. El proyecto busca preservar su historia y potenciar su inmenso valor cultural, transformándola en un lugar vivo de memoria.
Desde Rocamora, la intervención ha integrado de forma indisoluble la puesta en valor arquitectónica y la musealización. El diseño expositivo respeta la identidad original del edificio, permitiendo que la propia arquitectura actúe como narradora. A través de este recorrido, la restauración de sus espacios dialoga directamente con la historia de su propietaria, logrando que cada rincón guarde un eco, una carta y un susurro del pasado.
Concebida como una arquitectura que recuerda, que cuenta y que conmueve, Villa Adelaida ofrece al visitante una experiencia inmersiva y cercana. El proyecto devuelve la voz a este referente patrimonial, que ahora vuelve a abrir sus puertas para quien quiera escuchar, combinando el rigor técnico de la restauración con la sensibilidad de un espacio donde la memoria se mantiene viva.
Cliente: Ayuntamiento de Santa Pola
Publicado en Diario Alicante | Alicante Plaza | La onda digital
Para ofrecer las mejores experiencias, utilizamos tecnologías como las cookies para almacenar y/o acceder a la información del dispositivo. El consentimiento de estas tecnologías nos permitirá procesar datos como el comportamiento de navegación o las identificaciones únicas en este sitio. No consentir o retirar el consentimiento, puede afectar negativamente a ciertas características y funciones.